气动插板闸阀应用
气动插板闸阀又称气动螺旋闸门是一种粉料、晶粒料、颗粒料及小块物料的流量或输送量的主要控制设备,广泛使用在冶金、矿山、建材、粮食、化工等行业控制流量变化或迅速切断。
气动插板闸阀特点
结构简单、操纵灵活、重量轻、无卡阻、特别适用于各类固体物料和50mm左右块状、团状物料的输送及流量调节,安装不受角度限制,操作方便,能随时调整尺度。
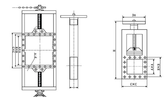
气动插板闸阀连接尺寸
|
类别
|
A×A
|
B×B
|
C×C
|
H
|
L
|
n-d
|
重量
|
|
单向
|
200×200
|
256×256
|
296×296
|
820
|
100
|
8-Φ12
|
62
|
|
250×250
|
306×306
|
346×346
|
930
|
100
|
8-Φ14
|
70.5
|
|
300×300
|
356×356
|
396×396
|
1050
|
100
|
8-Φ14
|
81
|
|
400×400
|
456×456
|
496×496
|
140
|
100
|
12-Φ14
|
114
|
|
450×450
|
510×510
|
556×556
|
1450
|
120
|
12-Φ18
|
130
|
|
500×500
|
560×560
|
606×606
|
1610
|
120
|
16-Φ18
|
147
|
|
双向
|
600×600
|
660×660
|
706×706
|
1830
|
120
|
16-Φ18
|
169
|
|
700×700
|
770×770
|
820×820
|
2130
|
140
|
20-Φ18
|
236
|
|
800×800
|
870×870
|
920×920
|
2440
|
140
|
20-Φ18
|
303
|
|
900×900
|
974×974
|
1030×1030
|
2660
|
160
|
27-Φ23
|
424
|
|
1000×1000
|
10741074
|
1130×1130
|
2870
|
160
|
24-Φ23
|
636
|